Eladó Családi ház Ráckeve - Szent Vendel út közelében

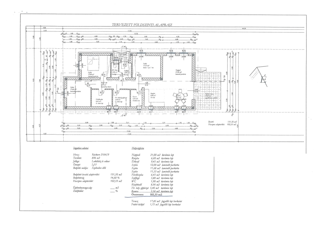
102 m2Alapterület 3 Szoba
81 600 000 Ft Ár
389103Azonosító
További adatok

836 m2 Telek

Kertre néző Kilátás

Új Állapot

Tégla Szerkezet

Gáz (héra) Fűtés

Összkomfort Komfort

Saját beálló Parkolás

Közepes Tömegközlekedés

Amerikai konyhás

Van Kertkapcsolat

2025 Építés éve

Hitelkalkuláció – a részletekért kattintson valamelyik bank logójára!

Eladó új építésű önálló családi házak Ráckevén!

Most épülő új lakóparkban kínálunk megvételre új építésű, önálló családi házakat. 16 db telek van a kivitelező tulajdonában, melyek 800-1000 nm közöttiek, ön még választhat!

A választható ingatlanok alaprajz szerint:
1,- nappali + 2 hálószobás kialakítás nettó 102 nm - 81.600.000.-Ft,
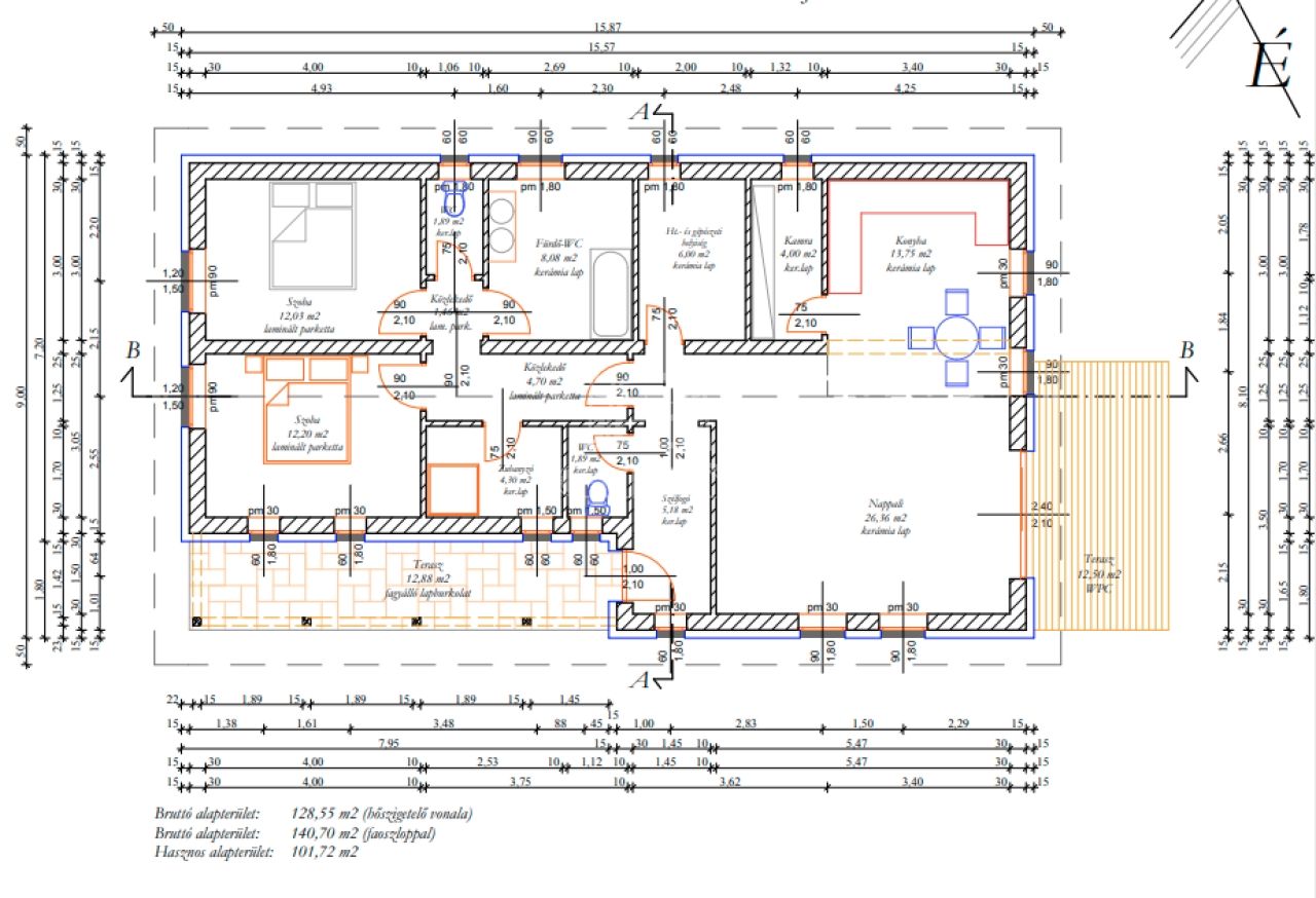
2,- nappali + 3 hálószobás kialakítás nettó 110 nm - 88.000.000.-Ft,

A belső falak jelenleg még az ön igényei szerint alakíthatóak, illetve ha nagyobb alapterületű ingatlanra van szüksége az is kivitelezhető.

Műszaki paraméterek:
- porotherm 30-as tégla falak, 15 cm külső szigetelés,
- műanyag 3 rétegű nyílászárók redőnnyel, szúnyoghálóval szerelve,
- fűtést és a melegvizet gázkazán biztosítja padlófűtéses hőleadással,
- 3 db hűtő-fűtő klíma,
- burkolatok 10.000.-Ft/nm árig,
- beltéri ajtók 150.000.Ft/db árig,
- bejárati ajtó 300.000.-Ft -ig,
- szaniterek -Mofém,Grohe, vagy Alföldi tipusok kerülnek beépítésre,
- terasz burkolva,
- 1 autónak térkövezett beálló,
- oldalt beton kerítés, elől WPC,

Opcionálisan kérhető:
- Hibrid fűtésrendszer- a gázfűtés mellé hőszivattyút is szerelnek, ennek ára: 1.350.000.-Ft,
- 3 Kw napelem felszerelése 1.500.000.-Ft,
- belsőépítészeti munák a mellékelt fotók alapján, ennek ára megegyezés szerint.

A telkek közötti térkövezett utat ( 5 méter széles) , és a járdákat a kivitelező építi. A tulajdonos célja egy zárt lakópark kialakítása ahol a tervek alapján egy magánbölcsöde is épül.

Birtokbaadás: 2026. negyedik negyedéve.

Iskola, óvoda, orvosi rendelő, Penny, buszmegálló 5-10 perc sétával elérhető.

Amivel segítjük az Ön ingatlanvásárlását:
- ingyenes hitelügyintézés,
- jogi háttér,
- földhivatali ügyintézés,
- energetikai tanúsítvány,
- a vevő számára az ingatlanközvetítés ingyenes.

Irodánk 30 éves szakmai tapasztalattal áll ügyfelei rendelkezésére!

Várom szíves megkeresését!
Märcz Roland

Märcz Roland

Hívjon bizalommal

+36-20-474-Mutasd!

További hirdetéseim

Ingatlaniroda
GDN Ingatlanhálózat - Märcz Kft
+36 22 503 000

Küldjön üzenetet

Visszahívást kérek

Hasonló ingatlanok