Eladó Családi ház Budapest XXII. kerület - Remek ajánlat Budafok-Felsővárosban

256 m2Alapterület 6 Szoba
279 800 000 Ft Ár
385229Azonosító
További adatok

1300 m2 Telek

Panoráma Kilátás

Felújított Állapot

Tégla Szerkezet

Gáz (cirkó) Fűtés

Dupla komfort Komfort

Saját garázs Parkolás

Kiváló Tömegközlekedés

Amerikai konyhás

Van Kertkapcsolat

1995 Építés éve

Hitelkalkuláció – a részletekért kattintson valamelyik bank logójára!

CSAK AZ IRODÁNK KÍNÁLATÁBAN! XXII. kerületben Budafok-Felsővárosban, magasfeszültség és pincerendszer mentes részen, eladásra kínálunk egy 1995-ben épült és 2024-ben mind műszakilag mind esztétikailag felújított és korszerűsített 3 szintes, amerikai konyhás nappali + 5 hálószobás önálló építésű családi házat, intim 1299 m² parkosított telken.

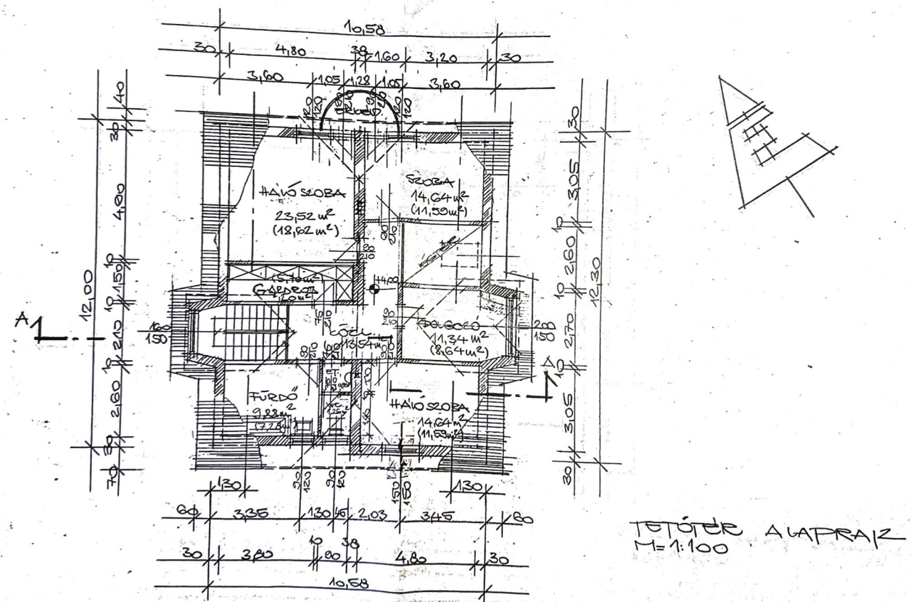
Az ingatlan elosztása: pinceszint + magasföldszint + tetőtér, a 3 szint teljes bruttó alapterülete összesen 308,63 m² , szintekre bontva pince 104,9 m² ; magadföldszint 106,61 m² ; tetőtér bruttó 97,02 m² ( nettó 79,2 m² az 1,9 méter alatti területtel számolva ).

A nettó hasznos lakóterület ( magasföldszint + tetőtér ) 185,81 m² , bruttó lakóterülete pedig 203,63 m².

Méretek, tájolás, elrendezés az alaprajzokon látható.

Ez az ingatlan nemcsak funkcionálisan, hanem hangulatában is kiemelkedő, minden helyisége rendkívül tágas és világos, így a természetes fény egész nap átjárja ezt az otthont.
A nagy ablakfelületek és a jól átgondolt elrendezése nyitott levegős atmoszférát teremtenek, amely ideális a mindennapi élethez, pihenéshez és akár kreatív tevékenységekhez vagy otthoni munkavégzéshez is.

Az ingatlan műszaki felszereltsége is kiemelkedő, ami nemcsak kényelmi, hanem energetikai szempontból is komoly előnyt jelent.
A kiépített napelem- és napkollektor rendszer lehetővé teszi a megújuló energiaforrások hatékony hasznosítását, így jelentősen csökkenthető a ház fenntartási költsége.
A pinceszinten elhelyezett két puffertartály – egy 300 literes és egy nagyobb, kb. 600–700 literes – nemcsak a készenléti melegvíz ellátást biztosítják, hanem aktívan támogatják a padlófűtésrendszer működését is, ezzel növelve az otthon hőkomfortját.
Ez a technológiai háttér különösen vonzó lehet azok számára, akik korszerű, energiatakarékos otthont keresnek, és hosszú távon is fenntartható megoldásokban gondolkodnak.
Kiépítésre került továbbá 5 db. vadonatúj inverteres hűtő-fűtő klíma is.

A ház az elmúlt időszakban jelentős felújításon esett át, amely nemcsak esztétikai, hanem funkcionális szempontból is emeli az ingatlan értékét.
A teljes festés friss, világos megjelenést biztosít, míg a nappaliban és a szülői hálóban elhelyezett dekor tapéták egyedi hangulatot teremtenek.
Az új függönyök és lámpatestek tovább fokozzák az otthonosság érzetét.

A gépesített, teljesen új konyhabútor modern megoldásokat kínál a mindennapi használathoz, míg a lépcsőházban és az emeleti szobákban elhelyezett új laminált padlóburkolatok egységes, letisztult megjelenést biztosítanak.
A pinceszinten található fürdőszoba teljes körűen felújított, így akár önálló lakrészként is használható ennek a szintnek egy bizonyos része, de alkalmas lehet a jelenlegi funkcióját is betöltő wellness résznek is.

A külső megjelenés sem maradt ki, új homlokzati színezés és új tetőcserép került felhelyezésre, ami nemcsak esztétikai, hanem műszaki szempontból is komoly előrelépés.
Ezek a munkálatok összességében azt mutatják, hogy az ingatlan gondosan karbantartott és azonnal költözhető állapotban van.

Várom szíves jelentkezését, jöjjön nézze meg ezt a remek ajánlatot mihamarabb!

Az ingatlan részletes ismertetése és bemutatása előre egyeztetett időpontban lehetséges, amelyet nagyon rugalmasan kezelünk, akár HÉTVÉGÉN is.
További kérdéseivel kapcsolatban várom a jelentkezését.
Amennyiben Önnek a vásárláshoz szüksége lenne hitelre, babaváró kölcsönre, lakástakarékra, stb., kezdeményezheti a kapcsolatfelvételt bankfüggetlen hitelügyintézőinkkel, teljesen DÍJMENTESEN.
Közel 25 év szakmai tapasztalattal rendelkezem, eladó vagy kiadó ingatlana értékesítése vagy bérbeadása esetén, készséggel állok az Ön rendelkezésére is, keressen bizalommal.
Märcz Ágnes

Märcz Ágnes

Hívjon bizalommal

+36-20-960-Mutasd!

További hirdetéseim

Ingatlaniroda
GDN Ingatlanhálózat - Märcz Kft
+36 22 503 000

Küldjön üzenetet

Visszahívást kérek

Hasonló ingatlanok