Eladó Lakás (téglaépítésű) Érd - AA+ LAKÁSOK ÉRDLIGETEN

164 m2Alapterület 5 Szoba
230 000 000 Ft Ár
394813Azonosító
További adatok

168 m2 Telek

Kertre néző Kilátás

Építés alatt Állapot

Tégla Szerkezet

24 m2 Erkély/terasz

Megújuló energia Fűtés

Dupla komfort Komfort

Garázs/beálló vásárolható Parkolás

Emelet 1

Van Lift

Kiváló Tömegközlekedés

Amerikai konyhás

Van Kertkapcsolat

2024 Építés éve

Hitelkalkuláció – a részletekért kattintson valamelyik bank logójára!

KIEMELKEDŐ LOKÁCIÓ!

KÉTGENERÁCIÓS LAKÁS VAGY ÜZLETHELYISÉGNEK, RENDELŐNEK KIVÁLÓ, PRIVÁT PARKOLÁSI LEHETŐSÉG KÖZVETLENÜL AZ ÜZLET /IRODAHELYISÉG ELŐTT!

MAGAS MŰSZAKI TARTALOM, IGÉNYES KIVITELEZÉS, AA+ LAKÁSOK ELADÓK ÉRDLIGET LEGSZEBB RÉSZÉN.

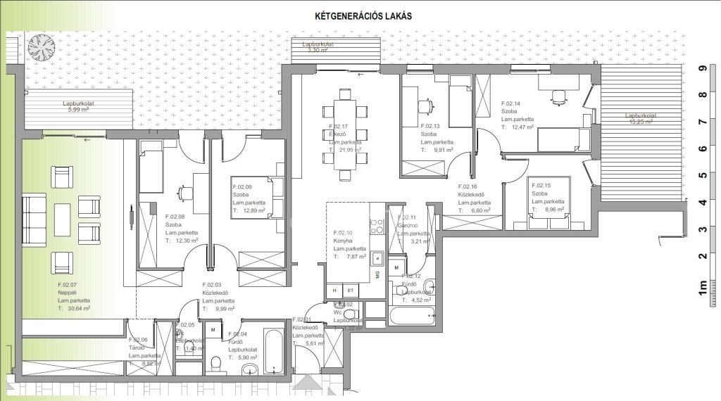
2 NAPPALI + 5 SZOBA, 164.25 m2; erkély: 20 m2, földszinti lakás Bruttó: 230.000.000,-

164,3m2 (81,74 + 82,53 )

A lakás egy albetét számon van, de a két lakás külön bejárati ajtóval került kialakításra, az épület belső folyosójáról.

Az ingatlan „A” jelű része előtt az utcafrontról 2-2 db gépkocsi elhelyezésére szolgáló parkolóhely lett kialakítva. A felszíni parkolókból (ügyfélforgalom esetén) az ingatlan egységek közvetlenül is megközelíthetőek, mert az erkélyajtók bejárati ajtóként lettek kialakítva.

A lakáshoz vagy belső vagy külső parkolóhely vásárlása kötelező.

Felszíni gépkocsi parkoló a lakás előtt közvetlenül 2 AUTÓ RÉSZÉRE:
7.000.000,-

MÉLYGARÁZS: 9.000.000,- / BEÁLLÓ, MÉG 2 DB ELÉRHETŐ, ÖNÁLLÓ ALBETÉT

Az épület 2026.májusában kapja meg a használatbavételi engedélyt.

Érd központi részén, de mégis kertvárosi utcában csendes környezetben, végig aszfaltúton megközelíthető helyen eladó egy nettó 164.3 m2-es kétgenerációs duplakomfortos földszinti lakás ELADÓ!

CSOK ÉS CSOKHITEL IGÉNYBE VEHETŐ!

Felosztása a következőképpen alakul: fürdőszoba (5.9 nm, 4.52 nm), amerikai konyhás nappali-étkező (29.86 nm, 30.64 nm), közlekedő (9.99 nm, 6.60 nm), 5 szoba (12.30 nm, 12.89 nm, 9.91 nm, 12.47 nm, 8.96 nm ), wc helyiség (1.22 nm, 1.40 nm).

Rövid műszaki ismertető:
Energetikai besorolás: AA+

A 4 szintes (P+FSZT.+IEM.+IIEM) társasház 11 db lakást tartalmaz amiből 2 db lakás kétgenerációs kialakítású. A lakások rendelkeznek kert, erkély és tetőterasz valamelyikével. Továbbá lakáson belüli / kívüli tároló lehetőséggel. Akadálymentes bejutás az épületbe.

Felszereltség:
A Fszt.-i lakások padlótemperálás kialakításúak. Hanggátló biztonsági lakásbejárati ajtók. A külső nyílászárók műanyag szerkezetűek, bukó - nyíló kivitelben, 3 rétegű hőszigetelésű üvegezéssel. Redőny előkészítés/ beszerelés igény szerint.
Belső burkolás a vevő igénye szerint. Alapkínálatból vagy egyedi igény alapján választható belső ajtók. Lakáselválasztó hang gátló falak kerülnek kialakításra.
Lakásonként egyedi fogyasztásmérők (hidegvíz, melegvíz, fűtés, áram).
Helyiségenként digitálisan vezérelt hőszivattyús hűtés/fűtés.

Extrák:
- Okosotthon alaphálózat, igény szerint bővíthető
- Internetről távolról telefonnal vezérelhető hűtés/fűtés lehetőség
- Lakásonként videokaputelefon
- Közösségi terekben kamerahálózat (CCTV)
- Teremgarázs elektromos gépkocsi töltési lehetőség
- Szintek közötti akadálymentes közlekedés személyfelvonóval
- Teremgarázsban közösségi kerékpár tároló


Eladó lakások:
-F.01 lakás 78,79 m2; terasz: 8,82+12.64 m2; kert: 30,78 ár: ELKELT!
-F.02 lakás 164,3 m2; terasz: 32,85 m2; kert: 168,36 ár: 248.000.000,-Ft.
-F.03 lakás 82,66 m2; terasz: 26,07 m2; kert: 152,14 ár: ELKELT
-F.04 lakás 93,64 m2; terasz: 12,32 m2; kert: 125,31 ár: ELKELT
-I.05 lakás 87,3 m2; terasz: 12,64 m2 ár: ELKELT!
-I.06 lakás 164,25 m2; Erkély: 20,27 m2 ár: ELKELT
-I.07 lakás 82,66 m2; erkély: 7,74 m2 ár: ELKELT!
-I.08 lakás 81,74 m2; terasz: 18,77 m2 ár: ELKELT!
-II.09 lakás 90,1 m2; terasz: 87,86 + 22,17 m2 ár: ELKELT!
-II.10 lakás 67,16 m2; terasz: 27,57 m2 ár: ELKELT!
-II.11 lakás 92,84 m2; terasz: 99,8 m2 ár: ELKELT!

Gyönyörű csendes környezet, jó levegő - kár lenne kihagyni!

A közelben buszmegálló. Óvoda, iskola, bevásárlási lehetőségek gyalogosan vagy autóval pár perc alatt elérhetők!

A kivitelező Megbízható, sok éves tapasztalattal rendelkezik, aki garantálja a kiváló minőséget garanciával!

Szüksége van hitelre? SEGÍTÜNK!
Bankfüggetlen hitel tanácsadónk díjmentesen áll az Ön rendelkezésére! Keressen bizalommal!
Ha a hirdetés felkeltette érdeklődését, várom hívását a hét minden napján.
Märcz Ágnes

Märcz Ágnes

Hívjon bizalommal

+36-20-960-Mutasd!

További hirdetéseim

Ingatlaniroda
GDN Ingatlanhálózat - Märcz Kft
+36 22 503 000

Küldjön üzenetet

Visszahívást kérek

Hasonló ingatlanok