Eladó Lakás (panel) Budapest XXII. kerület - Nagytétényi út

49 m2Alapterület 2 Szoba
79 500 000 Ft Ár
394522Azonosító
További adatok

Panoráma Kilátás

Felújított Állapot

Panel Szerkezet

8 m2 Erkély/terasz

Házközponti egyedi mérővel Fűtés

Összkomfort Komfort

Utcán, közterületen Parkolás

Emelet 10

Legfelső emelet

Van Lift

Tömegközlekedés

Amerikai konyhás

Nincs Kertkapcsolat

1970 Építés éve

Keleti Tájolás

Hitelkalkuláció – a részletekért kattintson valamelyik bank logójára!

Örökpanorámás, felújított lakás nagy erkéllyel – azonnal költözhető

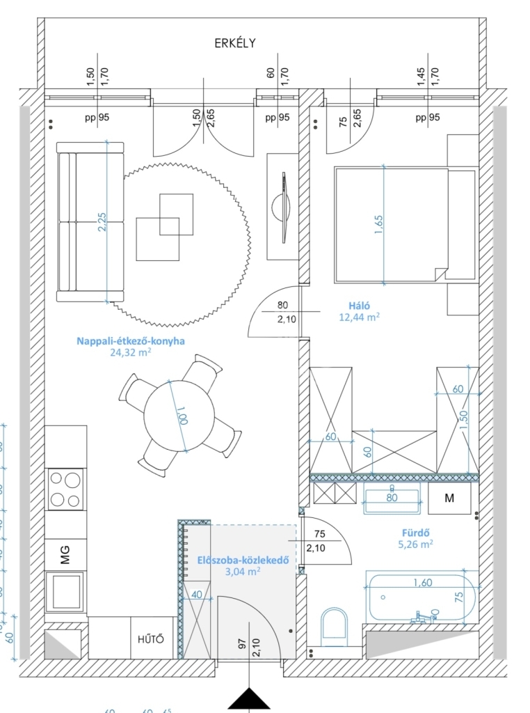
Budapest XXII. kerületében, a Nagytétényi úton, a Campona közelében eladó egy igényesen felújított, 49 m²-es, 2 szobás lakás, amelyhez egy 8 m²-es, panorámás erkély tartozik.
Az ingatlan egy karbantartott, szigetelt, liftes társasház 10. emeletén található.
A lakás teljes körű felújításon esett át, amely nemcsak esztétikai, hanem műszaki megújulást is jelent.
Cserélve lettek a villany- és vízvezetékek, bővítésre került a villanyhálózat 32A-re, új radiátorok kerültek beépítésre, valamint korszerű nyílászárók redőnnyel. A burkolatok minden helyiségben megújultak, a konyha modern, gépesített, a lakás klimatizált.

Az átgondolt alaprajzi módosításnak köszönhetően a terek jól kihasználtak és élhetőek. A keleti tájolásnak és a sok ablaknak köszönhetően a lakás rendkívül világos, ugyanakkor csendes. Az erkélyről szép, nyitott panoráma tárul elénk.

A társasház rendezett, a lakóközösség kulturált. A környék infrastruktúrája kiváló: több buszjárat és éjszakai közlekedés közvetlen közelben, két vasútállomás pár perc sétára, ahonnan az Etele tér gyorsan elérhető. Autóval az M0, M6, valamint a főbb közlekedési útvonalak könnyen megközelíthetők.

Az ingatlan tehermentes, 1/1 tulajdonban van, azonnal költözhető. A beépített bútorok és gépek a vételár részét képezik, további berendezés megegyezés szerint elérhető.
Posztlné Leiti Gabriella

Posztlné Leiti Gabriella

Hívjon bizalommal

+36-30-503-Mutasd!

További hirdetéseim

Ingatlaniroda
GDN Ingatlanhálózat - Märcz Kft
+36 22 503 000

Küldjön üzenetet

Visszahívást kérek

Hasonló ingatlanok